The Nest
The Nest
From $58,500 ex gst
The Nest by Granny Flat Kits Australia offers a practical and affordable solution for those looking to add a secondary dwelling to their property. As part of Granny Flat Kits Australia’ “Cheapest Design” range, The Nest provides a cozy yet functional living space that maximizes comfort without breaking the bank.
Whether you’re looking to create a home for aging parents, a guest house, or even a rental opportunity, The Nest is designed to meet your needs efficiently and affordably.

Built to Last Designs

Three year Warranty

Turn Key Move in Option

6 Star Energy Rated
Smart and Functional Design
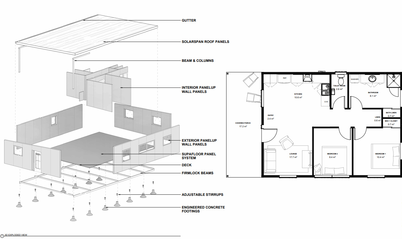
The Nest maximizes space with its efficient layout, ensuring all necessary amenities are included within a compact footprint. The design focuses on functionality, offering a cozy living area, a well-planned kitchen, and a comfortable bedroom. It’s an ideal option for anyone looking for a practical and affordable housing solution without unnecessary frills.
Inclusions
Each DIY Granny Flat will be packed with premium quality fittings and fixtures that we can include as starter with each of our 6 beautiful designs.
All kitchen cupboards
All electrical appliances, oven, hotplate, rangehood
80ltr hot water electric storage
Floating vanity
Corner shower unit
All taps and fittings
Toilet system, pan, slow closing seat and lid.
Prehung doors and frame, door hardware.
All trims skirtings and timber cornice trim
Double glasses windows
Aluminium front door and sidelight Double glasses.
Composite decking
Get started Today
There has never been a better time to to order a new modern granny flat from Granny Flat Kits Australia. Whether you need extra space at home, somewhere for the Grandparents to live, or you just want to move those teenage kids out of the house, then we can help.
We offer a range of modern, stylish energy efficient granny flats that and beautifully designed with premium finished and fixtures.
With the option of installing it yourself, hiring your own trades or using our team to build your new granny flat there is really no excuse not to get started today.
Did you know that your new Granny Flat can also be used as Airbnb accommodation and actually make you money?





